快速报价

免费家装顾问

全程跟踪服务,避免装修陷阱
* 免费电话申请: 0351-3933777
家装品质护航
选择肖邦家居就是选择了一份美好的生活承诺
30000㎡实景展厅
68大实景样板展示
全城市环保材料以环保卫为根基
严格按照德系工艺标准
层层把关严苛验收

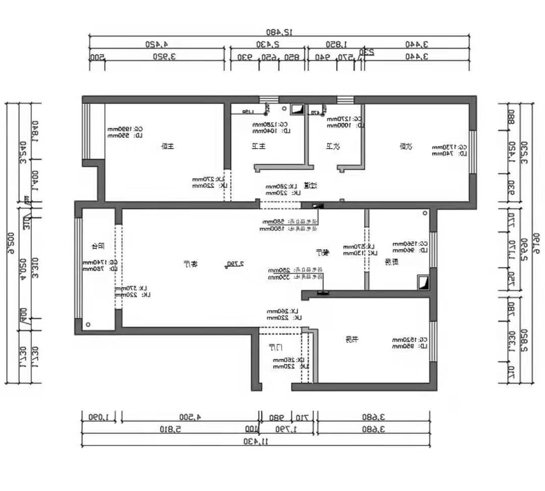
李晨:首开国风琅樾 128㎡ 法式

浏览数:87次 更新时间: 2026-01-03

户型分析

上一篇:李晨:龙堡绿洲 180㎡ 现代简约

下一篇:李晨:辰兴优山美郡 128㎡ 现代轻奢

算一算 我家装修需要多少钱
算一算我家装修需要多少钱
免费报价电话
0351-3933777