快速报价

免费家装顾问

全程跟踪服务,避免装修陷阱
* 免费电话申请: 0351-3933777
家装品质护航
选择肖邦家居就是选择了一份美好的生活承诺
30000㎡实景展厅
68大实景样板展示
全城市环保材料以环保卫为根基
严格按照德系工艺标准
层层把关严苛验收

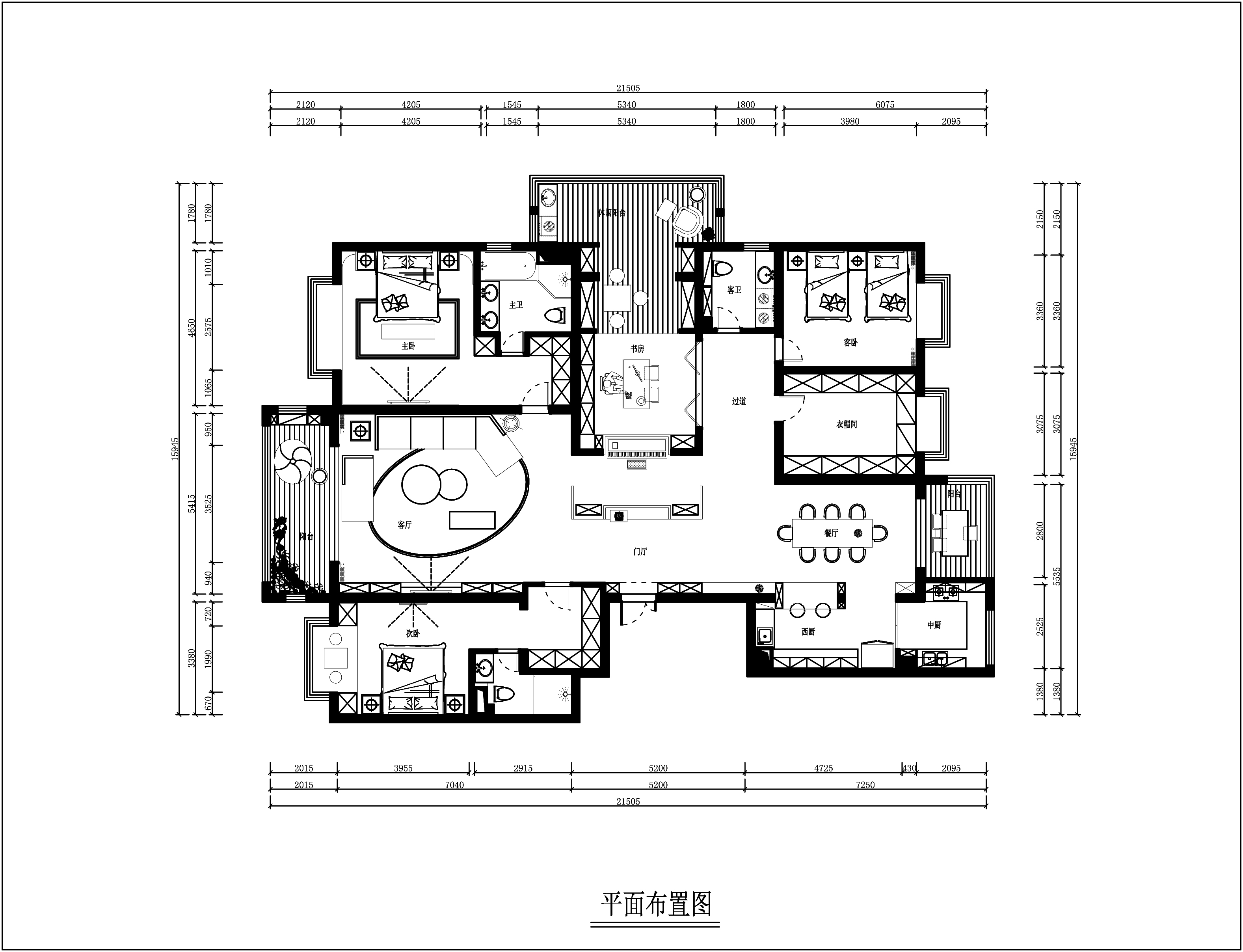
马旭峰:劲松新景 225㎡ 现代简约

浏览数:94次 更新时间: 2025-06-11
  • 现代的简约

    案例风格

  •  
  • 五居室

    案例户型

  •  
  • 160平米以上

    案例面积

  •  
  • 劲松新景

    楼盘名称

  •  
  • 太原

    所在城市

  •  
  • 马旭峰

    设计师

户型分析

上一篇:马旭峰:光信国信嘉园 203㎡ 新中式

下一篇:马旭峰:坤杰拉菲香榭 143㎡ 简欧风

算一算 我家装修需要多少钱
算一算我家装修需要多少钱
免费报价电话
0351-3933777